基本情報 賃貸

77,000円 /月

管理費: 6,810円
間取り
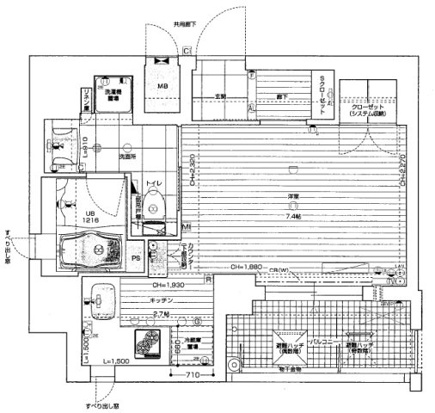
1K
面積
29.57㎡
築年数
18年
階数
8階 / 13階建

リーガル神戸三宮山手 8階 1K
物件のポイント

★人気のペット可分譲シリーズマンション♪

*オートロックセキュリティ対応・防犯カメラ・宅配ボックス等も完備
*L字型システムキッチンは2口ガスコンロ+グリル付き
*駐輪場・バイク置場・駐車場など共用施設も充実仕様
*ペット飼育可(小型犬:可 / 猫:要相談)※最大2匹迄相談可)
*システムキッチン・浴室乾燥機付バス・温水洗浄便座付トイレなどハイスペックな設備仕様

礼金ゼロ・敷金ゼロの初期費用お安くご契約いただけます!
毎月の家賃お支払い・契約金(初期費用)もクレジットカードお支払いいただけます♪
多数沿線を利用可能!アクセス至便な好立地が魅力的な物件です(^∇^)ノ

物件種目 賃貸マンション
賃料 77,000円
管理費 6,810円
間取り 1K
面積 29.57㎡
築年数 18年
費用詳細
保険 要 2年 17,000円 ジャパン少額短期保険
決済方法 初期費用可 賃料可
維持費 24時間サポート会費 2年 16,500円
その他
※ペット飼育時:敷金預託 賃料の2ヶ月分

設備・条件は物件画像の下に表示されています

住所

兵庫県神戸市中央区下山手通2丁目

交通アクセス
● 東海道本線 「三ノ宮駅」 徒歩6分
● 地下鉄西神・山手線 「三宮駅」 徒歩2分
● 阪神神戸線 「神戸三宮駅」 徒歩6分

同じ種目の物件

賃貸
フルセイル朝日町 1階 1K デザイナーズルーム
フルセイル朝日町 1階 1K デザイナーズルーム

53,000円

1K / 16.51㎡

売買
MAC東大和コート 4階1Kタイプ
MAC東大和コート 4階1Kタイプ

-

1K / 18.20㎡

売買
ビッグバーンズマンションN23 1階 1DK
ビッグバーンズマンションN23 1階 1DK

-

1DK / 25.13㎡

売買
ビッグバーンズマンションN22(区分2戸一括売)
ビッグバーンズマンションN22(区分2戸一括売)

-

1K/1K / -